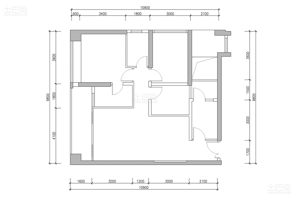
户型:三居 3#D户型
-
日期:2016-04-28
-
点击:598
户型:三居 3#D户型
设计效果图:



设计师人气榜
提交信息,试试看!
已有96人提交



